
Summerhome in Belarus
Rural Belarus
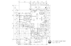
This thoughtfully planned two-storey home balances modern comfort with a retreat-like sensibility.
A generous kitchen anchors the ground floor, creating a relaxed and inviting hub for family life.
The program includes four comfortable bedrooms, a dedicated at-home gym, and a rejuvenating sauna.
An upper-level terrace enhances the connection to the surrounding landscape, providing a quiet escape from the city and allowing indoor and outdoor living to blend seamlessly.
Summerhome in Belarus
Rural Belarus
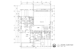
This thoughtfully planned two-storey home balances modern comfort with a retreat-like sensibility.
A generous kitchen anchors the ground floor, creating a relaxed and inviting hub for family life.
The program includes four comfortable bedrooms, a dedicated at-home gym, and a rejuvenating sauna.
An upper-level terrace enhances the connection to the surrounding landscape, providing a quiet escape from the city and allowing indoor and outdoor living to blend seamlessly.









