
Tuxedo Apartment Complex
Calgary, Alberta
This five-storey, 19-unit residential building revitalizes its urban block through a refined palette of brick, metal, and natural wood tones.
Deep balconies, green façades, and generous glazing create a strong indoor–outdoor connection for residents, while the building’s warm, contemporary character enhances the surrounding streetscape.
As one of the first projects to lead the rezoning of its area, the development plays an important role in enabling much-needed densification in a growing, increasingly sprawling city like Calgary.
Its gentle density and human-scaled massing support more sustainable urban patterns and help strengthen neighbourhood vibrancy.
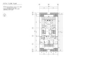
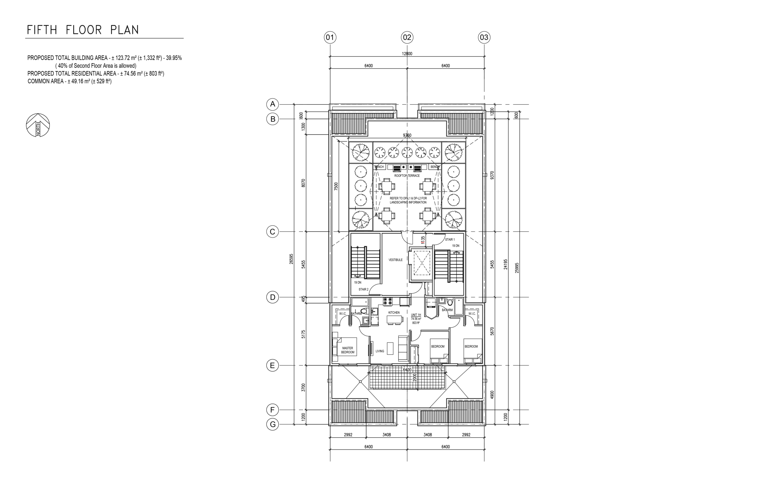
A communal rooftop terrace with barbeques and flexible gathering space anchors the project. Designed with durability, comfort, and thoughtful materiality, the building offers a timeless architectural expression rooted in longevity and community.
Tuxedo Apartment Complex
Calgary, Alberta
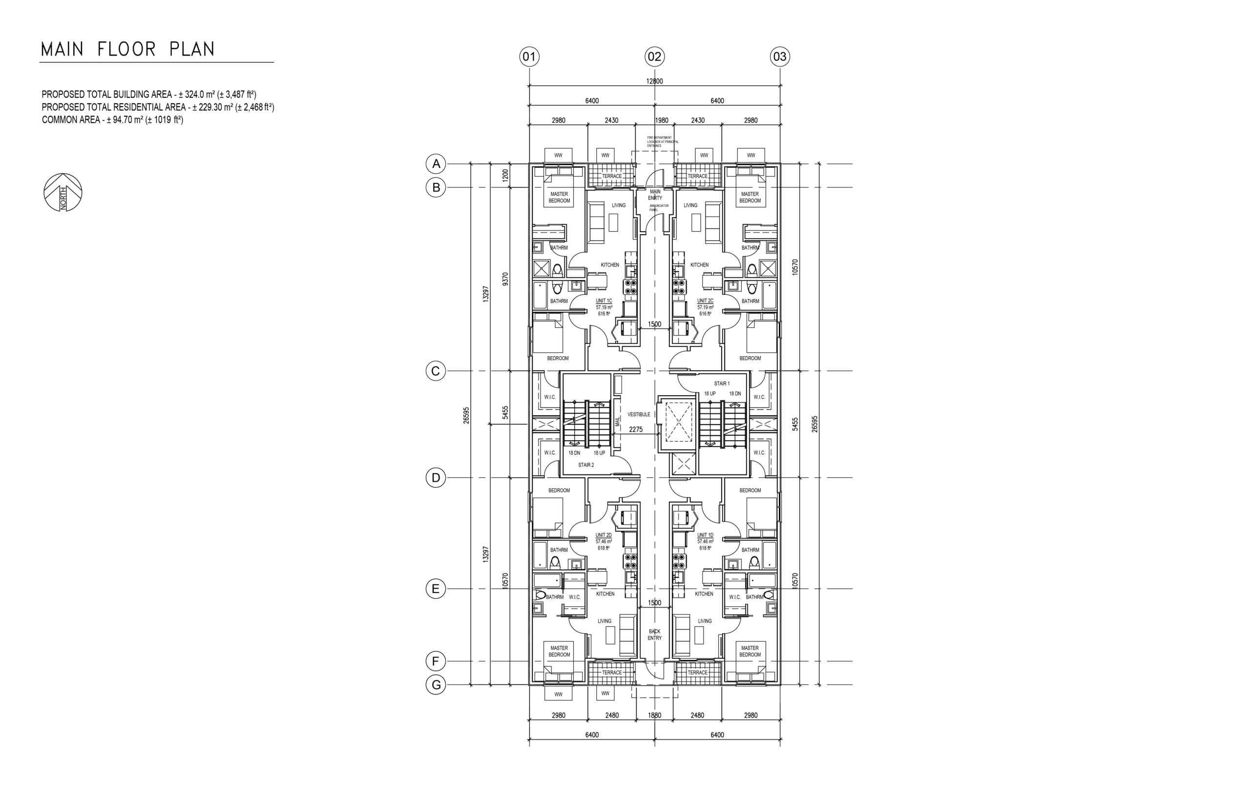
This five-storey, 19-unit residential building revitalizes its urban block through a refined palette of brick, metal, and natural wood tones.
Deep balconies, green façades, and generous glazing create a strong indoor–outdoor connection for residents, while the building’s warm, contemporary character enhances the surrounding streetscape.
As one of the first projects to lead the rezoning of its area, the development plays an important role in enabling much-needed densification in a growing, increasingly sprawling city like Calgary.
Its gentle density and human-scaled massing support more sustainable urban patterns and help strengthen neighbourhood vibrancy.
A communal rooftop terrace with barbeques and flexible gathering space anchors the project. Designed with durability, comfort, and thoughtful materiality, the building offers a timeless architectural expression rooted in longevity and community.











